bg

Haimahot 7|9

האימהות 9|7

בלב העיר המבוקש קרוב לקניון, כיכר המייסדים ולמוסדות חינוך ותרבות יוקם פרויקט בוטיק בסטנדרטים הגבוהים של חברת ONCE של אסף נחשוני.
14 יחידות דיור בטיפוסים שונים.

about the project

icon

מיקום מרכזי

icon

קרבה למקומות בילוי
ופנאי

icon

מפרט עשיר

icon

מחסן
לכל דירה

icon

2 חניות תת קרקעיות
לכל דירה

icon

אדריכלות מודרנית

icon

ליווי אדריכל נוף

icon

לובי ראשי וקומתי
יוקרתיים

icon

עיצוב פורץ דרך

הדמיות ותכניות הדירות

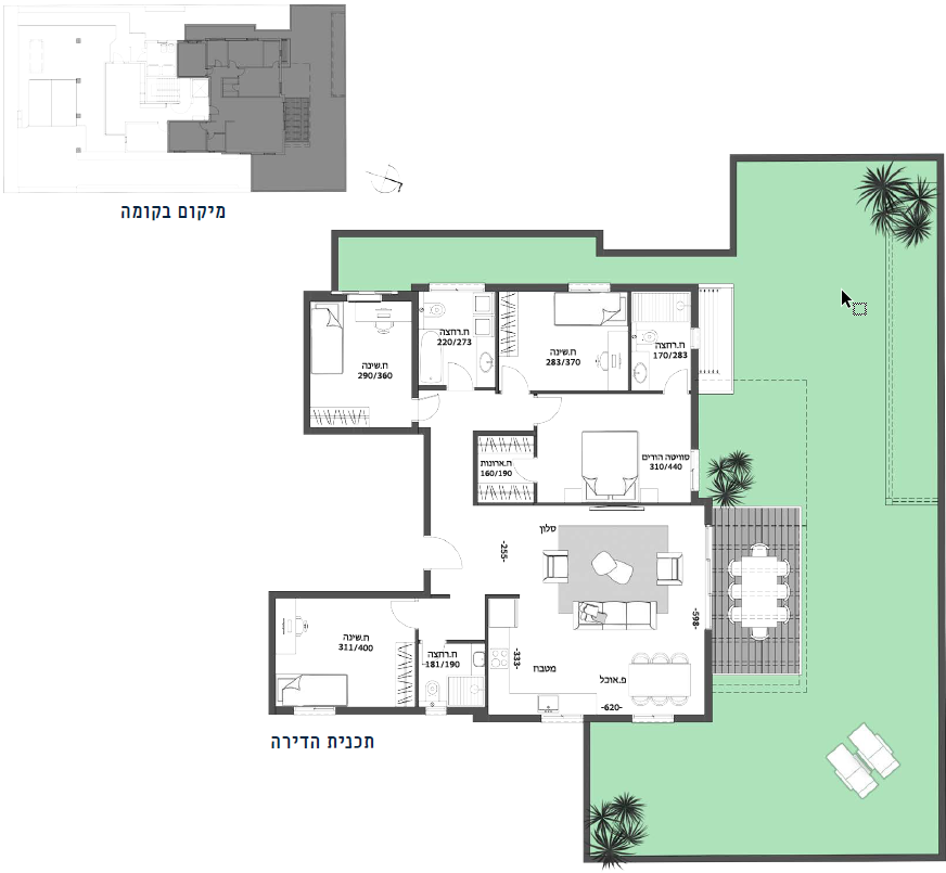
שטח הדירה ‏130 מ”ר
גינה ‏138 מ”ר
חדרי שינה 4
חדרי רחצה 3

*הגדלת המרפסת לשטח של כ-20 מ״ר בכפוף לתהליך אישור העירייה והיתר שינויים.

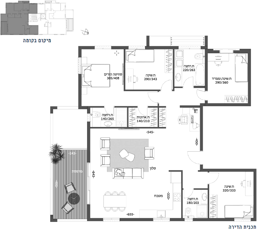
שטח הדירה ‏140 מ”ר
מרפסת ‏14 מ”ר
חדרי שינה 5
חדרי רחצה + שירותי אורחים 2

 

*הגדלת המרפסת לשטח של כ-20 מ״ר בכפוף לתהליך אישור העירייה והיתר שינויים.

שטח הדירה ‏134 מ”ר
מרפסת ‏14 מ”ר
חדרי שינה 4
חדרי רחצה 3

 

*הגדלת המרפסת לשטח של כ-20 מ״ר בכפוף לתהליך אישור העירייה והיתר שינויים.

שטח הדירה ‏125 מ”ר
מרפסת ‏13.5 מ”ר
חדרי שינה 4
חדרי רחצה 3

 

*הגדלת המרפסת לשטח של כ-20 מ״ר בכפוף לתהליך אישור העירייה והיתר שינויים.

שטח הדירה ‏171 מ”ר
מרפסת ‏117 מ”ר
חדרי שינה 5
חדרי רחצה 3

 

*הגדלת המרפסת לשטח של כ-20 מ״ר בכפוף לתהליך אישור העירייה והיתר שינויים.

מפרט טכני

עיצוב בנין חדשני בחיפויים חדשניים

לובי כניסה מעוצב

מעלית יוקרתית ומהירה

תאורה היקפית וגן, שער חשמלי הכולל מחסום כניסה

הכנה לקודן כניסה במרתף

הכנה למערכת מצלמות אבטחה בלובי ובחניון

קולקציה עשירה של אריחים וחיפויים בגרניט פורצלן 100/100 או 120/60 למעט חללים רטובים ומרפסות

אינטרפוץ 4 דרך בחללי הרחצה

ארונות אמבטיה מעוצבים עם כיור מובנה ומראה

ברזים מעוצבים בגוונים ייחודיים כדוגמת שחור, לבן, מוברש ועוד

ויטרינות גדולות לחלל המגורים למיקסום החשיפה לנוף ואור טבעי

תריסים חשמליים בכל הדירה

זכוכית בידודית

הכנה לרשתות

דלתות פנים משודרגות פנדור במבחר גוונים

חיבור חשמל דירתי תלת פאזי

אביזרי חשמל איכותיים מחברת ניסקו או גביס

הכנה למערכת קולנוע ביתי

הכנה לקולט אדים

נק’ רשת למחשבים ונק’ תקשורת בכל החדרים

נק’ חשמל וטלוויזיה במרפסת

אינטרקום TV צבעוני במעגל סגור

נק’ מים וגז במרפסת שמש / בגינה

מעקה מסגרות מהודר

הכנה לטעינת רכבים חשמליים

גלאי נפח בחדרי מדרגות ובחניונים

שקעי חשמל במפלס החניה

דירת גן מיני מרכזי אינוורטר כולל דמפרים חשמליים והנמכות גבס

פנטהאוז- מיני VRF

דירות 6+5 חדרים מיני מרכזי אינוורטר כולל דמפרים חשמליים והנמכות גבס

התכנית והפרטים באתר/דף/עמוד זה הינם לצורך המחשה והדמיה בלבד וכפופים לשינויים, לרבות על פי התרי בנייה והנחיות גורמי התכנון. המפרטים ותוכניות המכר שיצורפו להסכם המכר הם בלבד יחייבו את החברה.